Urgent Sea Wall Repairs
The brief
Movement to past sea wall repairs
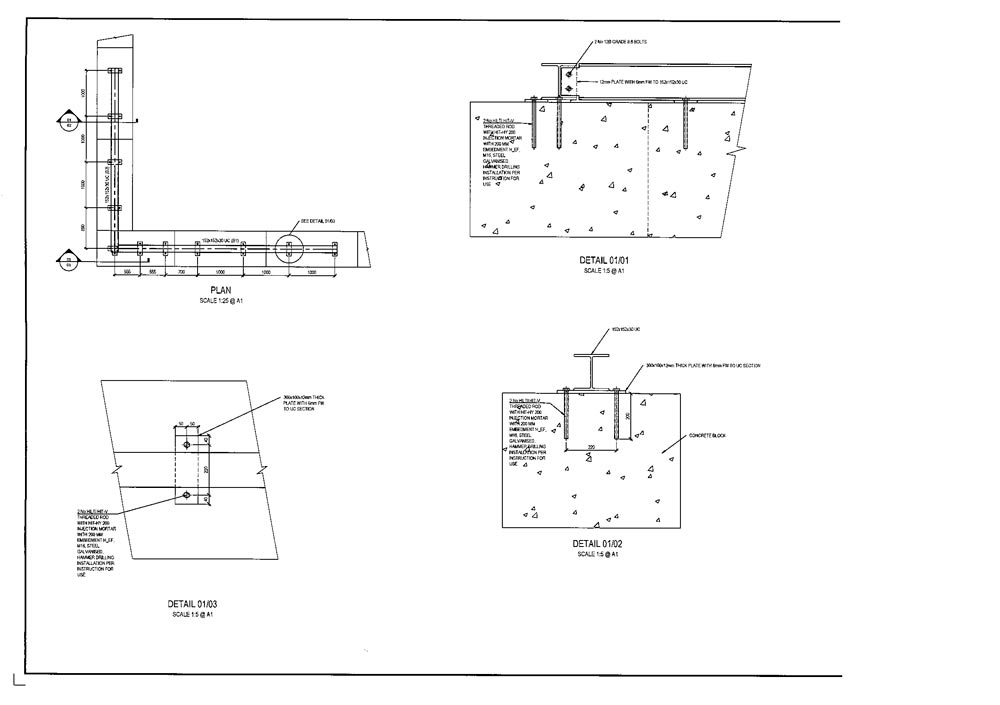
Our solution
Installation of supporting steels, removal of failing areas, reinstatement of supporting column.
The outcome
Sea wall restoration and preserving the upper walkway.
Products used:
General building materials
Flexcrete Fastfill- rapid setting, high strength
Fibre reinforced
Shrinkage compensated waterproof mortar
Stainless steel reinforcement bar
Engineering brick
Date completed: October 2019

